Villa for sale

REF. 9028
10,900,000 
FEATURES
REF. 9028
Location: La Moraleja
Built area (*): 10,764 ft2
Plot area: 30,139 ft2
Family bedrooms: 7
Family bathrooms: 10
Service bedroom with bathroom (**): 1
toilet: 1
Type: Villa
Condition:
Furnished: No
Energy efficiency: (A) SHOW
(*) This area is approximate and based on the catastral records. Rea is not responsible for any discrepancies with the sufaces areas.
(**) These bedrooms are additional to the "Family bedrooms"
Description

REA Inmobiliaria presents one of the most exceptional newly built properties in La Moraleja, a stunning residence of over 1,000 m² set on a magnificent 2,800 m² level plot. Designed for those wishing to move into a brand-new home, this villa stands out for its remarkable architecture, top-tier materials and an unparalleled sense of comfort and style.

The landscape design has been conceived to mirror the sophistication of the house: an ornamental pond, mature trees, expansive porches, a fully equipped outdoor kitchen and a heated pool create a private retreat ideal for year-round outdoor living.

The home is arranged across three floors, all connected by a lift.


GROUND FLOOR · The main living and entertaining area

The ground floor offers generous, sun-filled spaces with seamless access to the garden:

Elegant entrance hall with cloakroom and guest powder room.

Spacious living and dining room, divided into several cosy and flowing ambiences, framed by floor-to-ceiling windows that open onto the porches and landscaped garden.

Main kitchen, designed for daily comfort, featuring a central island, integrated pantry and direct access outdoors.

Outdoor kitchen with barbecue, ideal for enjoying the garden throughout the year.

Guest bedroom or office, complete with a full bathroom.

This level has been conceived for family life, entertaining and relaxation, where every room connects effortlessly with the exterior.


FIRST FLOOR · Private family quarters with large terraces

The upper level offers privacy, comfort and abundant natural light:

Four en-suite bedrooms, each with its own private terrace.

Primary suite with a 40 m² walk-in wardrobe and an impressive bathroom.

A second bedroom with walk-in closet, ideal for family members or long-stay guests.

The ambience on this floor is serene and refined, with carefully selected materials and generous proportions.


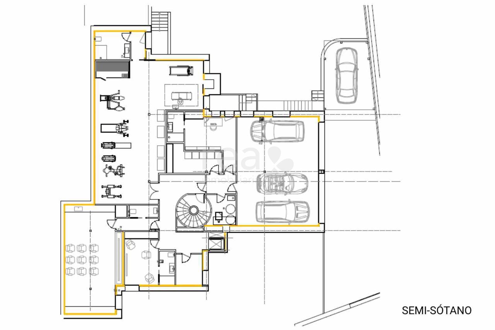
LOWER GROUND FLOOR · Leisure, wellness and service areas

The lower level has been designed as a multifunctional space that elevates everyday living:

Private cinema room.

Fully equipped gym.

Independent laundry room.

Service area with bedrooms and bathroom.

Storage rooms, luggage room and technical facilities.

Direct access to the garden, providing a practical and comfortable layout.


Garage for five vehicles.

The garden also features a children’s playhouse, an organic vegetable garden, and mature landscaping that enhances the privacy and beauty of the plot.


FACILITIES & EQUIPMENT · Maximum comfort all year round

The villa is equipped with state-of-the-art systems focused on energy efficiency and well-being:

Aerothermal system with ducted air conditioning.

Air-renewal system for continuous clean air.

Heated swimming pool with integrated large screen.

Lift connecting all floors.

Premium structure, finishes and high-end interior design.


A home that redefines contemporary luxury

A property designed for those seeking space, privacy and an elevated lifestyle, in one of the most secure, prestigious and best-connected areas of Madrid.

Call us at 34 916508937

* Required fields.
The information collected is necessary for REA to process your request. You can consult our Data Protection Policy by clicking on this link. You have the right to access, modify, and delete your data at any time.

See more similar properties

 
La Moraleja
12,949 ft2 5 Bedrooms 8 Bathrooms
11,500,000 €
REF. 7359
 
La Moraleja
11,162 ft2 5 Bedrooms 7 Bathrooms
10,500,000 €
REF. 6683